Leerstehendes Zweifamilienhaus mit Charakter wartet auf kreative neue Eigentümer

46149
Oberhausen
| Gemeindecode: 10805119000

Hauptkriterien

Zimmer: 6
Wohnfläche ca.: 196.63
Nutzungsfläche ca.: 196.63

Kaufpreis: 299.000,00 EUR

3,57% Provision, inkl.19% MwSt.

Hauptkriterien

Kosten

Baujahr: 1907 / 1974

Objektbeschreibung

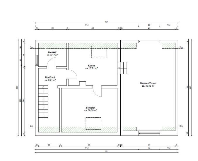
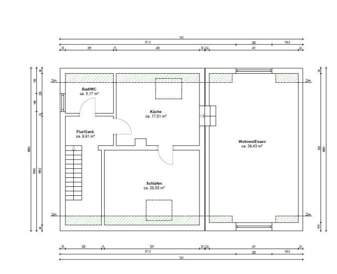
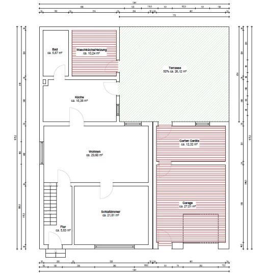
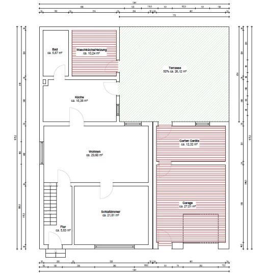
Objektbeschreibung: Dieses charmante Haus aus dem Jahr 1907 bietet auf ca. 196,63 m² Wohnfläche eine solide Basis für Eigennutzer oder Kapitalanleger. Es wurde 1976 durch einen Anbau erweitert, wodurch eine großzügige Garage sowie ein zusätzlicher Raum im Obergeschoss entstanden sind. Die Immobilie bietet vielfältige Nutzungsmöglichkeiten: Es kann sowohl als Zweifamilienhaus oder zu einem großzügigen Einfamilienhaus zusammengelegt werden. Das Erdgeschoss verfügt über eine Wohnfläche von ca. 104,61 m², wovon 26,00 m² auf die Terrasse entfallen. Sie verfügt über 2,5 Zimmer, ein modernes Bad und eine gepflegte Ausstattung. Das Obergeschoss bietet ca. 92,02 m² Wohnfläche mit 2,5 Zimmern. Die Ausstattung stammt aus den 70er Jahren, daher sind hier Modernisierungsmaßnahmen erforderlich. Die beiden Wohnungen sind mieterfrei und können sofort bezogen werden. Das Haus ist teilunterkellert und verfügt über eine Gaszentralheizung. Die Wasser- und Elektroleitungen wurden bereits 1989 erneuert. Dennoch muss der technische Zustand des Hauses dem heutigen Standard angepasst werden. Das ca. 560,00 m² große Grundstück verfügt über einen gepflegten Garten, der über die Erdgeschosswohnung zu erreichen ist. Eine große überdachte Terrasse lädt zum Verweilen ein und ein praktischer Geräteschuppen bietet zusätzlichen Stauraum. Dieses vielseitige Haus überzeugt durch sein Potenzial und seine großzügige Raumaufteilung. Ob als Kapitalanlage oder zur Eigennutzung – hier stehen Ihnen viele Möglichkeiten offen.

Ausstattung

Lage

Die Immobilie befindet sich in einem ruhigen Wohngebiet von Oberhausen-Holten, nahe der Stadtgrenze zu Dinslaken. Die Umgebung vereint ansprechende Wohnbebauung mit großzügigen Grünflächen und schafft so eine angenehme und lebenswerte Atmosphäre. Dank der hervorragenden Verkehrsanbindung an die Autobahn A3 sowie an den öffentlichen Nahverkehr sind sowohl das Oberhausener Stadtzentrum als auch umliegende Städte schnell und bequem erreichbar. Einkaufsmöglichkeiten, Schulen und Freizeiteinrichtungen befinden sich in unmittelbarer Nähe und bieten eine hohe Lebensqualität. Für Naturliebhaber und Erholungssuchende bieten die umliegenden Wiesen, Parks und kleinen Waldgebiete ideale Möglichkeiten für Spaziergänge und Out-door-Aktivitäten. Die familienfreundliche Nachbarschaft und das harmonische Wohnumfeld machen diesen Standort besonders attraktiv.

Sonstiges

Sonstige Angaben: Das Haus teilt sich wie folgt auf: 77,24 m² Nutzfläche, Kellergeschoss: -15,84 m² Kellerraum I -12,94 m² Kellerraum II -13,79 m² Kellerraum III -10,25 m² Kellerraum IV -18,83 m² Kellerraum IV -5,59 m² Flur 104 m² Wohnfläche im Erdgeschoss -5,87 m² Badezimmer -15,38 m² Küche -29,60 m² Wohnzimmer -5,83 m² Flur -21,81 m² Schlafzimmer -26,12 m² Terrasse (50%) 92,02 m² Wohnfläche im 1. Obergeschoss: -5,17 m² Badezimmer -9,91 m² Flur -17,01 m² Küche -20,50 m² Schlafzimmer -39,49 m² Wohnzimmer Dem Eigentümer stehen weitere Räume zur Verfügung: -10,24 m² Wäscheküche & Heizungsraum -12,32 m² Geräteraum -27,01 m² Garage

Umgebungskarte

Anfrage senden

Anbieter-Objekt-Nr: KL5951